Ref # 2473525

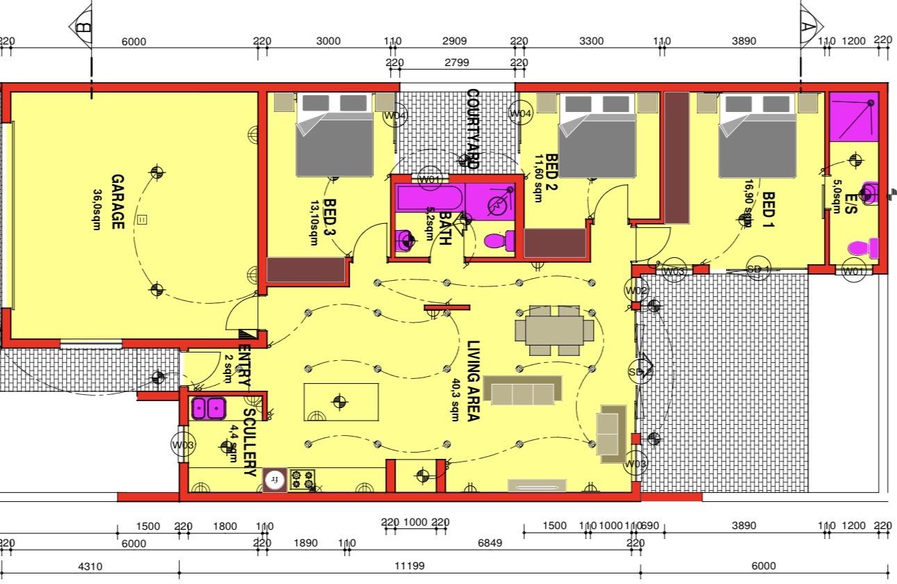
New development: Five Townhouses for sale at Sea Glass Complex in Extension 23, Ocean View.

Property Type
Townhouse
Bedrooms
3
Bathrooms
2
Garages
2
Living Area
1

New development: Five Townhouses for sale at Sea Glass Complex in Extension 23, Ocean View. New 3 bedroom townhouse development in extension 23, corner of Baobab avenue and Agulhas street, close to Pro-ed, easy access to the main road and about 1.4km to the beach.

Features:

-3 bedrooms, main bedroom with ensuite

-2 bathrooms

-Open plan kitchen

-scullery

-Indoor braai area

-Courtyard

-Double garage

Units:

Units 6 -8 | 156 sqm | N$ 1,920,000

Units 12-13 | 149 sqm | N$ 1,850,000

Contact Sesilia 0813288596

SK Namibia Premier Properties

Sesilia Kashile photo
Sesilia Kashile
+264 813 288 596
Welcome to SK Namibia Premier Properties, where excellence meets distinction.I...
Make an enquiry
Interested in this property? Please fill in your details below, and we will contact you as soon as possible.
By clicking on "submit" you agree to our privacy policy.